Skip to content
Andrea Jew | Interior Design
Hospitality- Commercial- Residential
Menu
About
Portfolio
Residential Services
Store
Contact
Page2
Leave a comment
Cancel reply
Δ
Post navigation
Published in
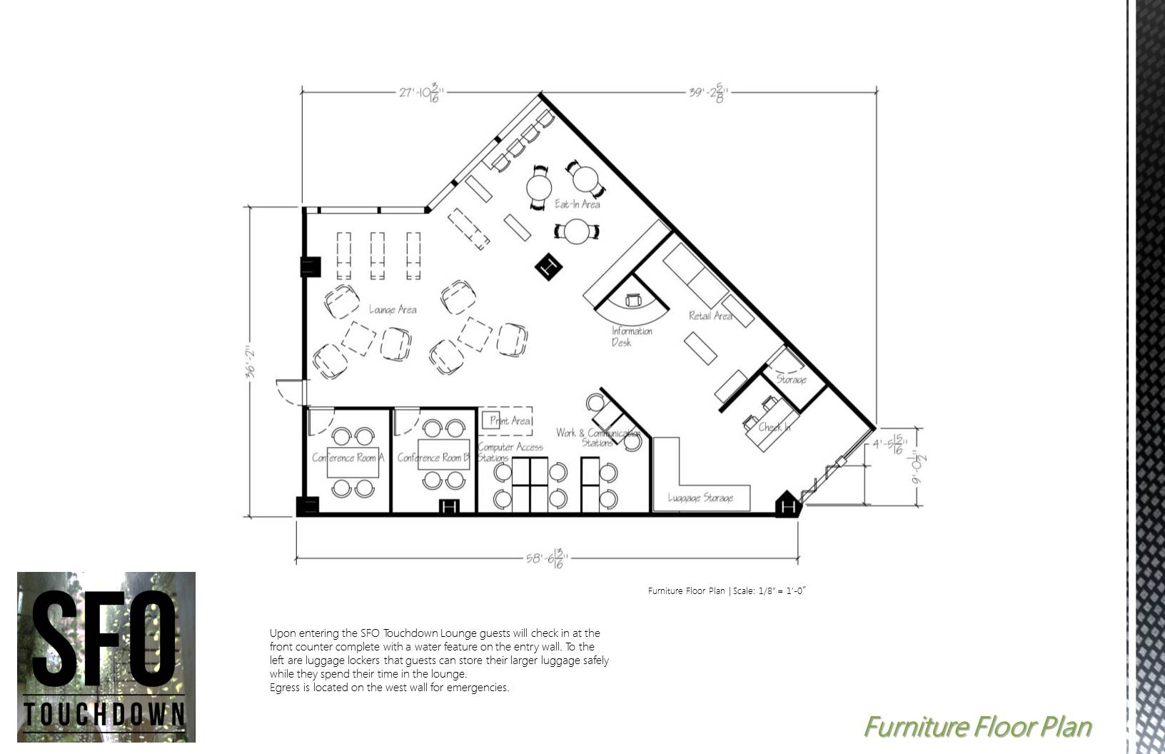
Touchdown 2015 ASID Competition
Comment
Subscribe
Subscribed
Andrea Jew | Interior Design
Sign me up
Already have a WordPress.com account?
Log in now.
Andrea Jew | Interior Design
Subscribe
Subscribed
Sign up
Log in
Copy shortlink
Report this content
View post in Reader
Manage subscriptions
Collapse this bar