Skip to content
Andrea Jew | Interior Design

Andrea Jew | Interior Design

Hospitality- Commercial- Residential

  • About
  • Portfolio
  • Residential Services
  • Store
  • Contact

Month: September 2014

AutoCAD 2014/2015

AutoCAD 2014/2015

Lawson Residence Living Room Furniture Layout
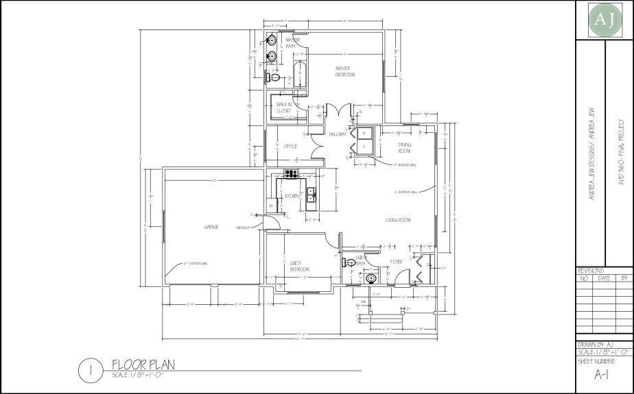
4 Bedroom, 2 Bathroom Home located in San Mateo County. South side of home was a legally converted garage to two additional bedrooms and 1 bathroom.
Hotel Suite Furniture Layout with King Sized bed.
September 30, 2014December 13, 2014 andreajewLeave a comment

Categories

  • Uncategorized

Recent Posts

  • Belmont Modern
  • Best Western Guestroom Refresh
  • Presidential Suite
  • Alto Bajo- A Modern Mexican Restaurant
  • Revit

Meta

  • Create account
  • Log in
  • Entries feed
  • Comments feed
  • WordPress.com

Good Day!

Recent Comments

Archives

  • July 2021
  • July 2017
  • August 2016
  • June 2016
  • December 2015
  • July 2015
  • May 2015
  • April 2015
  • March 2015
  • September 2014
  • July 2014
  • June 2014
  • April 2014
  • February 2014

Categories

  • Uncategorized

Meta

  • Create account
  • Log in
  • Entries feed
  • Comments feed
  • WordPress.com
  • Instagram
  • Facebook
  • Twitter
  • Etsy
Blog at WordPress.com.
  • Subscribe Subscribed
    • Andrea Jew | Interior Design
    • Already have a WordPress.com account? Log in now.
    • Andrea Jew | Interior Design
    • Subscribe Subscribed
    • Sign up
    • Log in
    • Report this content
    • View site in Reader
    • Manage subscriptions
    • Collapse this bar

Loading Comments...