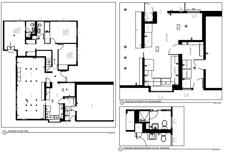
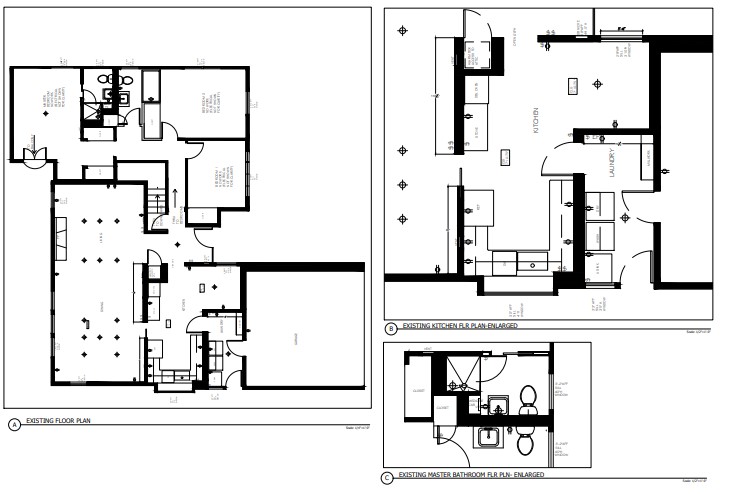
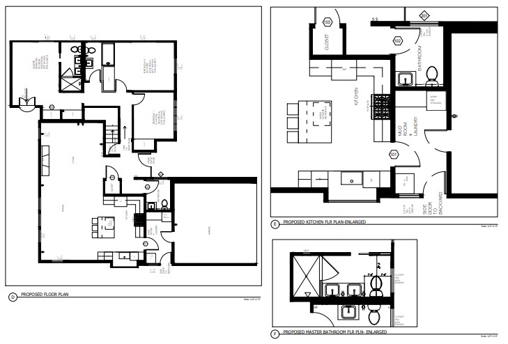
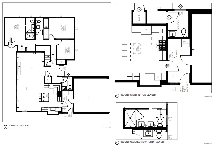
For this project I was the interior designer and worked extensively with the contractor and client to help my client’s vision come into fruition. Project scope included the addition of a 1/2 bath, kitchen, guest bathroom, master bathroom and laundry room remodel. Proposed and drafted all phases of project from initial space planning to Schematic Design, Design Development, Construction Drawings and Construction administration.









